DEPOSITO

€ 85.000

Codice riferimento: /2025/GG

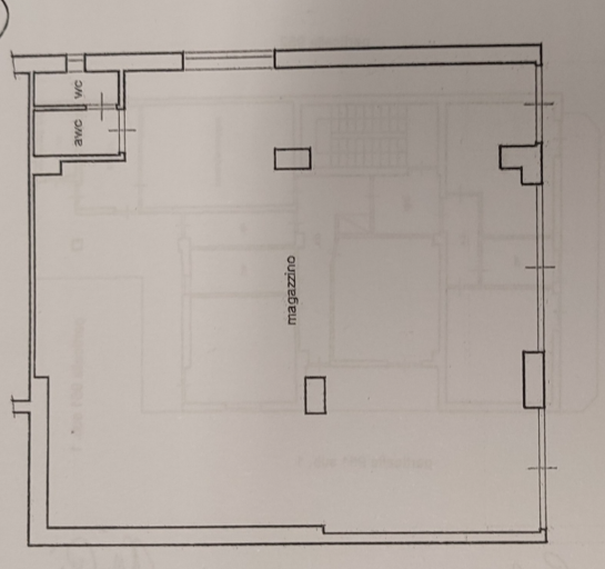
AFFARE VENDE A CAPO D'ORLANDO IN VIA CONSOLARE ANTICA, PRESSI BAR CHUPITOS, DEPOSITO DI MQ 80, DOTATO DI BAGNO E TRE APERTURE FRONTE STRADA POSSIBILITA' DI CAMBIO DI DESTINAZIONE A NEGOZIO GARAGE O UFFICIO, CLASSE ENERGETICA ESENTE

Caratteristiche
Comune Capo d'Orlando
Indirizzo Via Consolare Antica pressi Bar Chupitos
Contratto Vendita
Tipologia Immobile Deposito
Numero servizi Uno
Superficie 80mq

Contattaci per telefono
Chiama il numero
0941 91 11 65

Contattaci via email

Utilizziamo cookie al fine di migliorare la tua esperienza di navigazione sul nostro sito.
Maggiori informazioni